Located in St Marys you will find this updated and well maintained three-bedroom townhouse. Boasting modern amenities and extra inclusions this home is best suited for small families. Positioned a short drive away to local schools, shops and transport, book your inspection now to avoid missing out.
Unit Features Include:
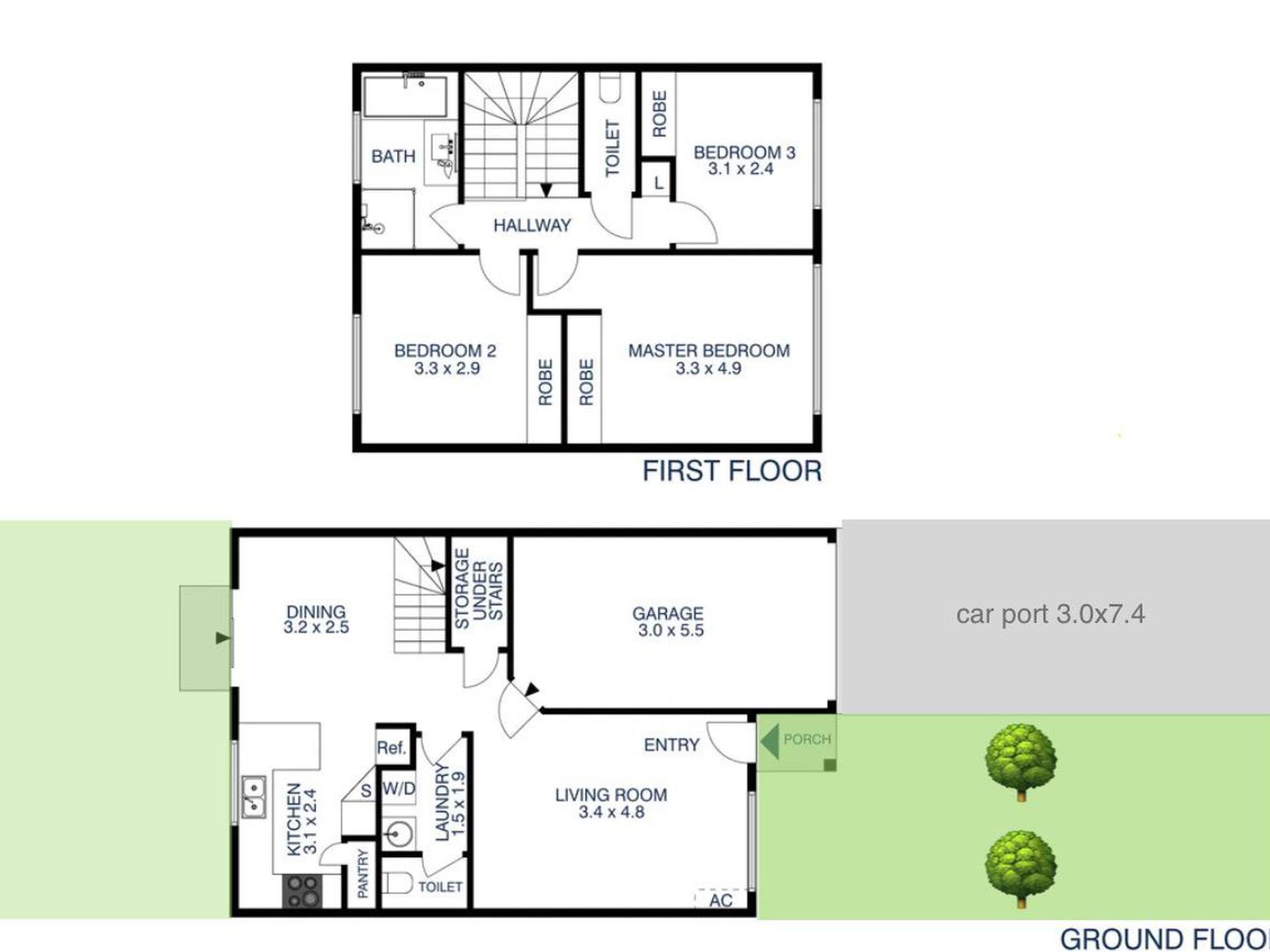
- Living area to the front of the home with a split system air conditioning unit
- Combined dining and kitchen area
- Kitchen with recently upgraded gas stove cooktop, new oven, ducted rangehood, dishwasher and ample cupboard space
- Floor boards throughout the lower level of the home
- Powder room off the laundry space
- Built in wardrobes to all bedrooms
- Sunrise main bedroom with scenic landmark views
- Air conditioning units and ceiling fans to all bedrooms
- Downlights in all living spaces
- Main bathroom with a bathtub and separate toilet
- Newly installed gas hot water heater
- Single car garage with storage shelves and internal access
- Remote controlled garage door
- East facing house with all spaces very well-lit and ventilated
- Recently upgraded low maintenance backyard
- Lush green front yard with easy care irrigation
- One minute drive to M4, 2 min walk to nearest bus stop
For further information please call Tait Manning at TAG RE on 1300 082 473.
Please submit an enquiry to register for a viewing time or commence your application.
Disclaimer: The above information has been gathered from sources that we believe are reliable. However, we cannot guarantee the accuracy of this information and nor do we accept responsibility for its accuracy. Any interested parties should rely on their own enquiries and judgment to determine the accuracy of this information for their own purposes. Images are for illustrative and design purposes only and do not represent the final product or finishes.





















